Serviço de Engenharia industrial
- Home
- Serviços
Sobre o Serviço
Projetos de layouts industriais
Você sabia que o planejamento adequado de projetos de layouts industriais pode trazer resultados expressivos e impactar diretamente na sua produção?
Já parou para analisar a disposição de máquinas e o fluxo de pessoas, bem como de materiais e produtos?
É frequente na indústria a escala de produção elevada, com milhares de unidades produzidas por ano em cada empresa. Para isso, grande parte das atividades se repetem, e a redução de movimento dos colaboradores faz a diferença na produtividade da mão de obra.
O layout industrial é responsável pela organização da distribuição do espaço e dos fatores envolvidos no processo de produção: colaboradores, equipamentos e materiais.
Itens que são otimizados quando adequados positivamente no layout das linhas de produção:
Melhoria da qualidade de estoque;
Redução do deslocamento de materiais produtos e pessoas;
Viabilização de supervisão e obtenção da qualidade;
Utilização racional do espaço disponível.
O projeto de layout industrial deve espelhar a maneira como a operação vai acontecer, independente se falamos de uma nova operação ou mudança em um layout já existente.
Como contratar um projeto de layout industrial?
Como sendo um mercado em expansão, às vezes pode ser difícil encontrar empresas e profissionais capacitados que realizem esse tipo de trabalho com qualidade, eficiência e custo-benefício.
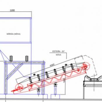
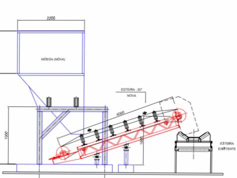
É aí que surge a Alfa Transportadores e Manutenção com sua Engenharia, que conta com o recurso de realidade virtual, de desenhos 2D e modelagem 3D e oferece um estudo completo de planejamento de novas linhas produtivas.
Além da inserção de novos equipamentos em linhas existentes ou Retrofit do processo de produção.
Frequentemente, desenvolve projetos de layouts de processos industriais complexos, e com todas as disciplinas pertinentes, tendo em seu time profissionais qualificados, dedicados e com grande experiência na área industrial.

























